


手动单梁悬挂起重机介绍
重要结构与组成
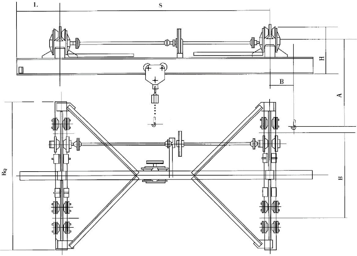
悬挂式主梁:多采用工字钢或轻型型钢作为主梁,跨度通常为 2-10 米,两端通过悬挂支架与屋顶连接,整体重量轻、承重稳定,无需地面轨道或支柱,节省地面空间。
起重与运行机构:
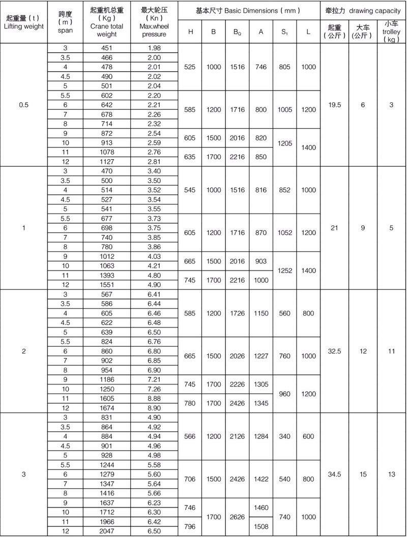
起升机构:以手动葫芦(如环链手拉葫芦)为重要,通过人力拉动链条实现重物的垂直升降,起重量一般为 0.5-5 吨,起升高度根据需求设计(通常 3-6 米)。
运行机构:主梁下方配备手动运行小车,葫芦固定在小车上,操作人员可通过推手或拉绳驱动小车沿主梁横向移动;部分型号的主梁两端还设有手动驱动装置,可带动整体沿悬挂轨道纵向移动(需人力推动)。
安*装置:配备吊钩防脱棘爪、链条 / 钢丝绳强度保护等基础安*部件,确*起吊过程稳定。
主要特点
适用场景
小型车间、维修作坊内的零部件吊装、设备检修;
仓库、货柜内的小件货物装卸、堆垛(尤其适合无电源或电力不稳定的环境);
实验室、展览场馆等对设备噪音、能耗有严格限制的场所;
临时性、低频率的起重作业(如户外搭建、小型工程辅助)。
注意事项
操作人员需熟悉手动葫芦的操作方法,严禁超载(需根据葫芦额定起重量严格控制负载);
定期检查链条 / 钢丝绳的磨损、锈蚀情况,及时润滑活动部件(如滑轮、轴销),避免卡滞或断裂;
起吊时需保持重物垂直,禁止斜拉歪吊,起吊后下方严禁站人,确*操作安*。