

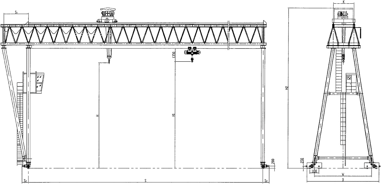
重要结构与组成
门架结构:由两根高大的支腿(通常为箱型焊接结构)和顶部横梁组成,形成 “门” 字形框架,支腿底部配备行走轮或轨道,可沿地面轨道纵向移动(部分型号为固定轨道式,仅起升和横向微调)。门架高度需满足预制梁的起吊高度及架梁时的净空需求,通常在 10-30 米之间。
起升机构:配备多组性能高卷扬机(根据梁体重量配置 2-4 台),通过钢丝绳连接专用吊具(如扁担梁、吊钩组),实现预制梁的垂直升降。起重量根据梁体规格而定,常见为 50-500 吨,部分特大型提梁机可达 1000 吨以上,以适应 30 米以上大跨度箱梁的吊装。
运行与微调机构:
大车运行:驱动门架沿地面轨道纵向移动,采用低速大扭矩电机,配合制动系统,确*重载状态下的平稳运行(速度通常为 0.5-3m/min)。
横向微调:部分型号在横梁上设置小车运行机构,可实现吊具横向微调(位移量 ±500mm),便于预制梁的精准对位存放或装车。
控制系统:采用 PLC 同步控制技术,确*多组卷扬机起升速度一致,避免梁体倾斜;操作方式为控制室联动控制,配备显示屏实时显示起重量、高度、运行速度等参数,同时具备过载保护、紧急停止、限位报警等安*功能。
主要特点
适用场景
预制梁场:将生产完成的预制梁从浇筑台座吊运至存放区,或从存放区转运至运梁车。
架梁现场:配合架桥机,将运梁车运输的预制梁吊装至架桥机上,完成 “提梁 - 喂梁” 环节。
大型构件厂:用于其他重型混凝土构件(如桥墩预制块)或钢结构件的吊装转运。
注意事项
作业前需检查轨道基础稳定性、钢丝绳磨损情况、制动系统灵敏度,确*设备处于完好状态。
起吊时*须梁体水平,避免单侧受力导致梁体开裂或设备倾覆。
操作人员需经专业培训,熟悉同步控制逻辑,严格遵守 “重载低速、轻载平稳” 的操作规范。
设备需定期进行结构探伤(尤其是焊接部位)和性能检测,确*长期强度高作业下的安*可靠。



