
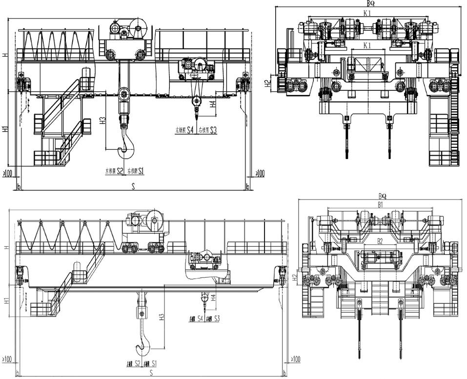
QDY吊钩桥式铸造起重机主要用于吊运熔融金属的冶金、铸造等场所,整机工作级别为A7,在主梁底部加设隔热层装置。起重机装配与试验符合国家质量监督检验检疫总局所发的质检办特[2007]375号文件。其它吊运熔融的非金属物料和吊运炽热固态金属的场所也可参照选用。(注:以下图中H0为大车缓冲器增加的高度。H0≤250)
环境条件:
1、起重机的电源为三相交流,额定频率为50HZ,额定电压为380V;
2、工作环境温度为-10~+60℃;
3、在+40℃的温度下相对湿度不超过50%;
4、如超过上述要求,根据用户需要按订货合同条款执行。
订货须知:
用户在定货或签订合同时,*须将本机的基本参数(额定起重量、起升高度、跨度等)描述清楚,以便提供满足工况要求和工作条件的产品。




QDY 型 5~74 吨吊钩式铸造起重机介绍
重要结构与安*设计
强化型双主梁桥架:采用 Q355B 或更强度高耐热钢材焊接成箱型主梁,整体结构经过高温应力处理,能承受 600℃以上环境温度的长期影响。桥架刚度大,挠度控制在 L/1000(L 为跨度)以内,避免因重载或温度变形导致运行不稳;跨度通常为 10~30 米,适配不同铸造车间布局。
专用起升机构:
主钩起重量 5~74 吨,配备双电机、双减速器、双制动器的 “三重冗余” 设计,任一部件故障时,其余部件可紧急制动,预防重物坠落。
卷筒采用耐高温合金材料,缠绕防高温钢丝绳(表面涂覆陶瓷涂层,耐温≥300℃),配合封闭式滑轮组,减少高温烟尘对绳索的侵蚀。
起升速度分为低速(1~3m/min,用于熔融金属平稳吊运)和高速(5~10m/min,用于空钩返程),满足不同作业阶段需求。
抗高温防护系统:
起升机构和电气元件外侧加装隔热罩(采用硅酸铝纤维材料),隔绝熔融金属的辐射热(可降低环境温度 50% 以上)。
司机室为密封式隔热结构,配备强制通风和空调系统,确*操作人员在高温环境下的舒适性与安*性。
运行机构:
大车运行采用耐高温电机,配合防尘制动器,运行速度 10~20m/min,确*桥架在多尘环境下的平稳移动。
小车运行轨道采用防烫处理,车轮组配备耐高温润滑脂,避免因高温导致润滑失效。
主要特点
适用场景
钢铁厂、铸造车间:吊运钢水包、铁水包至浇注工位,或转运高温铸坯至冷却区。
压铸行业:搬运铝合金、铜合金等熔融金属及压铸模具。
热处理车间:吊装需高温处理的工件(如淬火、退火件)。
注意事项
操作人员*须经过铸造起重机专项培训,熟悉高温作业风险及应急处理流程(如漏包、钢丝绳断裂的紧急应对)。
每日作业前需检查制动器性能、钢丝绳磨损、隔热罩完整性,确*安*装置 有效。
严禁超载或斜拉吊运熔融金属,起升高度需预留足够安*距离(距地面或设备≥1.5 米)。
设备需定期进行高温环境下的负荷试验(每年至少 1 次),确*结构和机构在额定工况下的稳定性。





